CHALET PAREADO EN EL CASAR CON 2 PLAZAS DE GARAJE ADICIONALES
- 259.481€
- 259.481€
Visión general
- Pareado
- 4
- 2
- 133.00 m2
Descripción
Molgar Gestión Inmobiliaria promociona este chalet pareado de protección oficial totalmente reformado y listo para entrar a vivir.
El chalet pertenece a una urbanización y tiene asociados como anejos indivisibles una plaza de garaje y un trastero.
En el precio de venta total está incluido lo antes descrito y otras dos plazas de garaje a elegir entre las que dispone la promotora que no son de protección oficial.
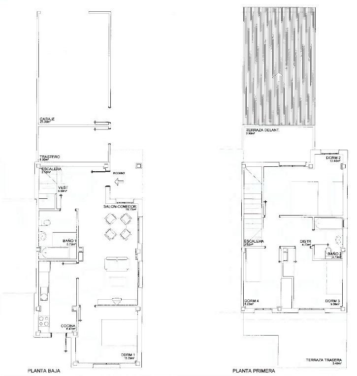
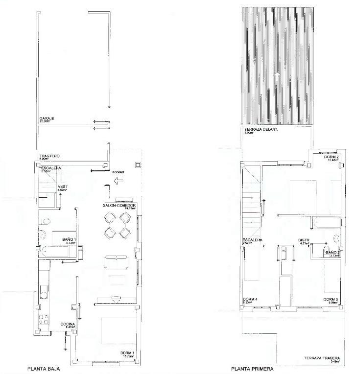
La vivienda son 133m2 tiene parcela por delante detrás y lateral, además tiene un garaje y un trastero dentro de la parcela. En la planta baja tenemos hall de entrada, cocina sin amueblar con salida a la parcela, baño completo, salón comedor con salida al exterior y un dormitorio. En la planta superior tenemos tres dormitorios, dos de ellos con terraza y un baño completo.
La calefacción es con propano, radiadores de aluminio, ventanas climalit, suelos de gres….
Si quieres tener tu primera vivienda a un precio asequible y además realizar una inversión en plazas de garaje no lo dudes, LLAMA E INFORMATE!
¿QUIERES CALIDAD DE VIDA? NO PIERDAS LA OPORTUNIDAD DE VENIR A CONOCER ESTA PROPIEDAD
Y si necesitas HIPOTECA, no dudes en consultarnos y sin compromiso nuestros asesores financiaros avalados por IEAF y homologados por el banco de España, te conseguirán la mejor hipoteca al mejor precio.
Dirección
Abierto en Google Maps-
Ciudad: El Casar
-
Zona: Castilla la mancha
Detalles
Actualizado el febrero 16, 2026 at 3:45 am-
ID de propiedad INV-1096
-
Precio 259.481€
-
Tamaño de propiedad 133.00 m2
-
Área terrestre 535 m2
-
Dormitorios 4
-
Baños 2
-
Tipo Pareado
-
Estado de la propiedad Para Reformar, Venta



